东莞小区既有住宅增设电梯方案

发布时间:2020-08-26

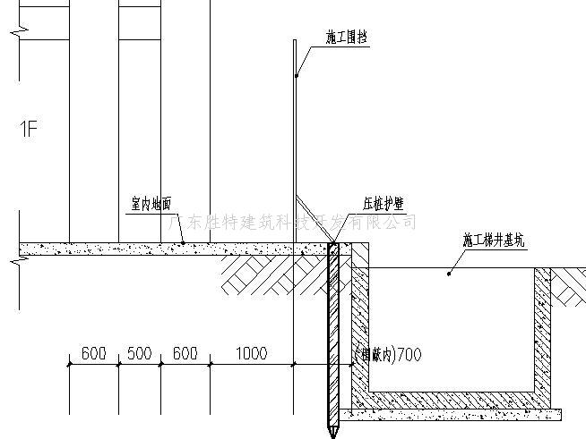
该既有住宅增设电梯项目包含3栋建筑物,楼层均为九层,系使用多年的框架结构,根据使用需要增设电梯。针对电梯井工程施工的特定情况,结合本工程实际,制定以既有住宅增设电梯方案:

一、增设电梯方案设计考量因素

①  现行设计规范标准

②  建筑所在位置区域及相关红线规划

③  尽可能减少对原结构的破坏

④  居民使用电梯的便利性

⑤  经济效益性

二、方案中电梯所用规格

TK800kg:后对重,有机房,娇箱尺寸1400x1350,梯井内尺寸为2m×2m

三、各栋建筑增设电梯方案

①  6栋住宅增设电梯方案如下图: 

既有住宅增设电梯

该建筑物为双梯四户住宅,需设置两台客梯,客梯两侧入口通道宽度为1.3m,满足消防要求,电梯每层停留点为住宅阳台部位,如下图: 

既有住宅增设电梯

②  7栋住宅增设电梯方案如下图: 

既有住宅增设电梯

考虑到消防因素,原梯间出口处须留至少1.5m宽的通道,故须拆除局部单车房,方可设置客梯。电梯每层停留点为楼梯半层平台处,如下图: 

③  8栋住宅增设电梯方案如下图: 

既有住宅增设电梯

考虑到消防因素,原梯间出口处须留至少1.5m宽的通道,部分单车房开门位置须进行相应改动。电梯每层停留点为楼梯半层平台处,如下图: 

既有住宅增设电梯

四、既有住宅增设电梯方案实行造成的影响

①  原建筑围护结构(外墙装饰、门窗等)将做一定整改;

②  电梯改造入口处,有原污水井、污水管道和雨水管道通过,电梯基坑施工前需要改造污水井、污水管道和雨水管道,见附图。

既有住宅增设电梯

六栋管道图

既有住宅增设电梯

七栋管道图

既有住宅增设电梯

八栋管道图

③  施工期间对居民出入、生活会造成不便影响,住宅入口需设置安全通道,宽度为1m,附图如下:

既有住宅增设电梯


广东中青建筑科技有限公司,拥有一支技术熟练、精干稳定的既有住宅改造加固施工队伍。如有广州、深圳、东莞既有住宅增设电梯相关技术疑问或业务,欢迎来我司洽谈,我公司将提供免费技术答疑,专业为您解答排忧。

本文内容来源于广东中青建筑科技有限公司官网



上一篇:建筑加固,简单带你看懂建筑加固 下一篇:既有房屋增设电梯,老旧小区加装电梯!
广东中青建筑科技有限公司 版权所有© Copyright
技术支持:东莞网站建设